おのなびの
おすすめ
ホーム > 泊まる・温泉 > 民宿・ペンション・ゲストハウス
泊まる・温泉
民宿・ペンション・ゲストハウス|尾道つばめ堂
尾道つばめ堂
(市街地)

みどころ紹介
瀬戸内海を望む尾道の路地に佇む、築100年、明治45年(1912年)の商家を貸切の特別な宿です。
1日1組だけの静かな空間で、「暮らすように滞在」尾道時間を御体験ください。
尾道駅から徒歩圏内、家族旅、グループ旅、サイクリング旅に最適です。
つばめ堂の一番の魅力は、“尾道では珍しい平地にある”という立地の良さ。
坂道を登らず、観光・食べ歩き・サイクリングを快適に楽しめます。
Tweet
基本データ
最終更新日:2025-12-22
- 住所・場所
- 〒7220035 広島県尾道市土堂2丁目4-25
- 電話番号
- 090-2109-7867
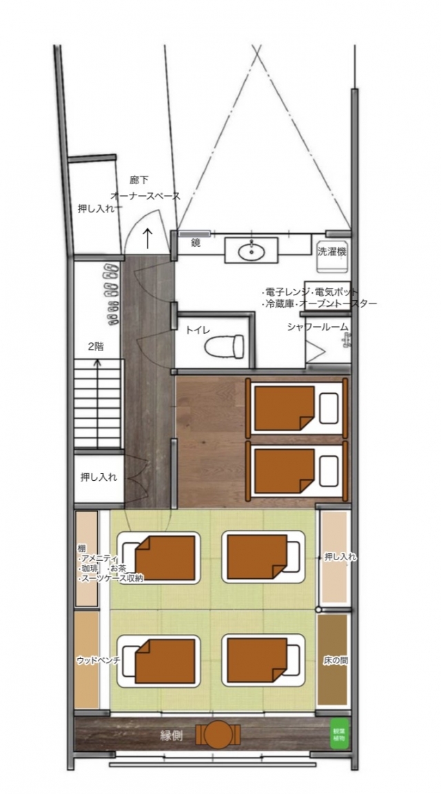
- 利用料金
- 【和室】
(部屋数)2室(最大6名)
(料金) 16,000円~ 25,000円 ※素泊まり - ホームページ
- https://www.tsubamedou00.com/
- 駐車場
- ※市役所駐車や近隣にコインパーキング有り
- アクセス
- JR尾道駅より車 約5分 / 徒歩 約15分
- 備考
- 【館内設備】無料インターネット無線LAN/洗濯機&乾燥機
【部屋施設】全館禁煙/テレビ(地上波不可です。グーグルキャストでの視聴のみ) /無料インターネット無線LAN/湯沸かしポット/お茶セット/冷蔵庫/ドライヤー/ウォシュレット/ボディソープ/シャンプー/コンディショナー/歯磨きセット/カミソリ/タオル/バスタオル/スリッパ/金庫/洗濯機/衣類乾燥機機/オーブントースター/コーヒーマシーン
【バリアフリー設備】貸出車椅子あり(事前リクエスト必要)
【送迎】なし
【ペット】不可































